Подключение чугунных радиаторов отопления. Способны установки чугунных батарей отопления
- Подключение чугунных радиаторов отопления. Способны установки чугунных батарей отопления
- Монтаж чугунного радиатора. Установка чугунных радиаторов отопления
- Как правильно подключить радиатор отопления при однотрубной системе. Схемы подключения батарей
- Подача воды в радиатор отопления. Возможные схемы подключения
- Что нужно для подключения радиатора отопления. Как устроен радиатор отопления
- Схемы подключения радиаторов отопления. Варианты схем
- Соединение батареи с трубой. О способах подключения батарей
- На что повесить чугунные батареи. Кронштейны для чугунных батарей
Подключение чугунных радиаторов отопления. Способны установки чугунных батарей отопления
Вариантов присоединения чугунных батарей к общей отопительной системе может быть несколько:- Способ диагонального подключения . Этот вариант предусматривает подключение тех механизмов, которые имеют в своей основе большое количество секций. Трубопровод подачи присоединяется к верхней футорке с одной стороны батареи, а обратка монтируется к нижней футорке с другой стороны.
В том случае, если такое подключение выполнить по последовательному принципу, то циркулирующая вода будет передвигаться за счет давления, образуемого в отопительной системе. Многие хозяева, желая избавиться от излишков воздуха в трубах, рассуждают на тему того, как снять чугунную батарею отопления.
Однако делать этого совсем не стоит, достаточно всего лишь установить специальные краны Маевского, служащие именно для этой цели. Основной минус такого подключения – ремонт чугунных батарей окажется весьма проблематичным, поскольку демонтировать такую конструкцию без последствий не получится. - Вариант, именующийся как нижнее подключение . Такой тип монтажа чугунного радиатора будет актуальным в том случае, если трубы системы располагаются под полом комнаты или под плинтусом. Этот способ является наиболее приемлемым с точки зрения эстетических свойств, поскольку никаких выступающих наружу коммуникаций не видно.
- Подключение одностороннего типа сбоку . Наиболее распространенный способ монтажа, принцип которого заключается в подключении трубы подачи к верхней футорке, а трубы отвода – к нижней.
Этот вариант установки обеспечивает хорошую теплоотдачу оборудования, но при условии, если подключение будет выполнены наоборот, то мощность работы оборудования снизится примерно на 10%. Если нагрев теплоносителя будет слабым, то специалисты рекомендуют установить в системе специально предназначенный для этих целей удлинитель водного протока. - Вариант параллельного подключения , которое осуществляется через систему труб, присоединенную к стояку подачи. Таким образом, вода будет уходить через трубы, соединенные с обраткой.
Оборудованные на участках входа и выхода батареи вентили позволят без труда снять радиатор и произвести необходимые ремонтные работы, при этом система продолжит функционировать. Основная отрицательная сторона такого способа – необходимость поддерживания постоянного высокого давления, иначе циркуляция теплоносителя будет проходить медленно.
Монтаж чугунного радиатора. Установка чугунных радиаторов отопления
Установка чугунных радиаторов отопления – это наверняка верное решение. Такой прибор отопления обладает рядом преимуществ, а его надежность проверена годами. В последнее время для изготовления радиаторов отопления используются и другие материалы, такие как алюминий, сталь или биметалл. Но, несмотря на это, производители чугунных радиаторов тоже не отстают. Если их внутренние параметры остались прежними, то сегодня чугунные радиаторы – это уже не те приборы, которые способны испортить интерьер дома, а устройства, которые выделяются своим отличным дизайнерским решением. Установка чугунных радиаторов отопления
Для изготовления подобных приборов, сегодня применяются более современные технологии, и это позволило повысить их рабочие параметры и технические характеристики, понизить частоту таких операций, как ремонт чугунных радиаторов отопления. Лицевая панель у современных чугунных батарей практически полностью плоская, а это значит, что у них более высокий уровень теплоотдачи. Самым большим спросом пользуются чугунные радиаторы, выполненные в стиле ретро, которые способны вписаться практически в любой интерьер.
Подготовка чугунных радиаторов к монтажу
Подготовительный этап включает в себя такие действия, как: выбор и приобретение радиатора, покупка необходимых дополнительных компонентов, таких как кран Маевского, крепежные кронштейны, сгоны, покупка краски, герметика и пакли. Также не забываем подготовить все необходимые инструменты, которые помогут нам выполнить монтаж чугунных радиаторов отопления.
Чугунный радиатор способен выдержать рабочее давление до 9 атмосфер. На заводе, на котором изготавливается радиатор, перед его продажей прибор проходит гидравлическое испытание.
В течение одной минуты он должен выдержать давление в 15 атмосфер. В тоже время, нужно быть весьма аккуратным при транспортировке таких приборов, так как чугунные изделия довольно хрупкие. Может быть, придется подумать о том, как разобрать чугунную батарею отопления.
Как правильно подключить радиатор отопления при однотрубной системе. Схемы подключения батарей
Существуют следующие виды подключения радиаторов к центральной системе отопления:
- боковое одностороннее;
- диагональное;
- нижнее;
- попутно перехлестывающее, или подключение Тихельмана.
Прежде чем мы перейдем к подробному рассмотрению каждого вида, опишем, как в общем виде выглядит и какие элементы включает радиатор, присоединенный к прямому и обратному стоякам. На рисунке ниже это представлено довольно наглядно. Необходимо пояснить лишь то, что такое байпас. Байпас – это отрезок трубы, меньшей по диаметру, чем остальные. Он соединяет подачу и «обратку» и устанавливается в том случае, когда в однотрубной системе присутствует терморегулятор.
Боковое одностороннее подключение радиаторов
Такая система подключения предполагает боковое одностороннее присоединение радиаторов отопления к прямому и обратному стояку, то есть обе трубы подключаются к одной и той же секции (сверху и снизу). Рекомендуется присоединять подачу к верхней части батареи, а «обратку» – к нижней. Двухтрубная схема, в которой подача горячей воды в систему радиаторного отопления происходит снизу, характеризуется более низкой (примерно на 7%) мощностью.
Боковое одностороннее подключение обеспечивает максимальный прогрев батарей с большим количеством секций или равномерный прогрев всех радиаторов в высотных зданиях, где эти элементы соединяются параллельно.
Диагональное подключение
Диагональная схема подключения радиатора к системе отопления предполагает присоединение стояков подачи и «обратки» с разных сторон: прямую трубу подводят к верхней части нагревательного элемента, а обратную – к нижней. Рекомендуется именно такой порядок, иначе эффективность обогрева помещения снизится по меньшей мере на 10%.
Диагональная схема соединения батарей – это оптимальный подход к организации системы отопления, состоящей из большого количества радиаторов. Горячая вода равномерно распределяется по всему пространству внутри батареи. Теплопотери при этом составляют не более 2%.
Нижнее подключение
Такая схема подключения используется, когда все трубы системы отопления спрятаны под пол. Стояки подвода и отвода теплоносителя присоединяются к нижней части крайних секций нагревательного элемента. Теплопотери при таком способе подключения могут достигать 15%, так как верхняя часть батареи прогревается неравномерно.
Подключение Тихельмана

Система Тихельмана. Нажмите на фото для увеличения.
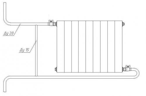
Схема соединения Тихельмана, или попутно перехлестывающее подключение радиаторов отопления – это та же двухтрубная система, только с установкой сужающих устройств на участках подачи и «обратки». Рассмотрим конкретный пример. Труба подачи от котла имеет диаметр 50 мм. В нее врезается подача на первый радиатор, диаметром 20 мм. После перехода следует отрезок трубы диаметром 40 мм. Далее – 20-милиметровый отвод на вторую батарею. После второго радиатора диаметр стояка меняется на 32 мм. Далее – еще один отвод 20 мм на нагревательный элемент. Диаметр стояка после третьего радиатора – 25 мм. Далее – последний отвод 20 мм и последняя батарея.
«Обратка» собирается по зеркальной схеме: первым подключается к стояку отвода при помощи трубы самого маленького диаметра первый радиатор, последним – последний элемент с диаметром стояка 50 мм.
Таким образом, даже в теплотрассах большой протяженности (большие особняки, гаражи, склады, ангары и т.д.) обеспечивается равномерный прогрев всех радиаторов с минимальными теплопотерями.
Подача воды в радиатор отопления. Возможные схемы подключения
Самое эффективное подключение батарей достаточно легко выполнить – как с точки зрения кол-ва узлов, так и в плане технологии монтажа.

Устройство радиатора отопления

Двухтрубная система отопления
Вариант №1. Схема Тихельмана
Наиболее популярная схема подводки , главным ее достоинством является максимальная эффективность всех отопительных радиаторов в любой точке системы. Кроме того, схема Тихельмана позволяет регулировать отдельный радиатор без какого-либо влияния на остальные узлы системы. Так, если в одной из комнат будет очень жарко, то батарею там можно отключить полностью/частично от поступления горячего теплоносителя. А та тепловая энергия, которая в результате освободится, будет равномерно распределена по остальным радиаторам.

Схема Тихельмана
На заметку! В других схемах такое, казалось бы, очевидное явление недоступно, в чем вы сможете лично убедиться при прочтении следующего пункта статьи (там имеет место неравномерное распределение остаточной тепловой энергии).

Решение Альберта Тихельмана
Также к преимуществам схемы можно отнести то, что вода в обеих трубах имеется общее направление движения. В плане гидравлики это очень даже хорошо, поскольку нагрузка на все узлы системы (в частности, на насос и котел отопления) заметно падает.
Горячая вода начинает двигаться от котла, поочередно продвигаясь по всем радиаторам. Движение «обратки» также начинается от первой батареи. Получается, что батарея №1 будет последней на пути «обратки», но первой на подаче горячего теплоносителя. К батарее №2 вода будет поступать с чуть меньшей температурой, однако этот узел уже ближе первого к котлу на контуре «обратки».

Процесс тока воды
Аналогичным образом ситуация обстоит с каждым последующим радиатором: чем он дальше от источника горячего теплоносителя, тем меньшее расстояние до точки выхода холодной воды. Как результат – условия для всех батарей примерно равны (в плане обмена теплом с системой), все они прогреваются одинаково вне зависимости от своего расположения.
Для разводки используются трубы диаметром 25 мм, в то время как подключение батарей к сети выполняется с помощью труб 20 мм.

Радиатор посередине работать не будет
Минус у схемы Тихельмана всего один – радиаторы нельзя размещать ровно посередине системы (они в этом месте попросту не будут греть). Это объясняется гидравлическим эффектом, который возникает в середине – здесь отток холодной и подача горячей жидкости образуют равное давление. В реальности же подобное почти не встречается, проблему решают незначительным перемещением батареи вправо или влево. Хотя есть и более простой вариант – создать небольшой виток на одном из контуров, чтобы увеличить его длину и сместить тем самым отопительную батарею с середины.

Тупиковая и попутная схемы отопления дома
Вариант №2. Подключение посредством двух двойных коллекторов
Данная схема отличается от предыдущей тем, что батарея, являющаяся первой к котлу отопления на подаче, одновременно первая и на пути «обратки». Эта первая батарея работает максимально эффективно, в то время как остальные узлы теряют эффективность по мере своего отдаление в системе.

Подключение через два двойных коллектора
Использование двух коллекторов дает возможность минимизации данного эффекта, т. к. создаются два контура. Благодаря этому число радиаторов в одном контуре уменьшается, а тепловая энергия распределяется более-менее равномерно.
Важно! На «обратке» и подаче, почти сразу после подключения к отопительному котлу, устанавливают по двойному коллектору. На линии подачи коллектор делит теплоноситель на два контура, идущих к одной и другой частям радиаторов соответственно. Аналогичная ситуация наблюдается и на линии «обратки». Как следствие – создается пара более коротких контуров.

Два контура
В этой схема каждый последующий радиатор греется хуже, о чем мы уже упоминали выше, но частично данный эффект можно устранить посредством балансировочных клапанов. Если на подаче к первому радиатору этот клапан немного прикрутить, то к остальным узлам, более удаленным, обеспечится лучший приток теплоносителя. Отметим также, что регулировать клапаны необходимо в любом случае, поскольку в действительности длина контуров, которые создаются коллекторами, всегда несколько различается. Следовательно, в батареях будет неодинаковое количество тепла, а потому они нуждаются в балансировке с целью уравновесить эффективность их работы.
Какую схему выбрать?
Из всего, что мы рассказали выше, можно сделать вывод: самой простой, гибкой и эффективной является именно схема Тихельмана. Использование двух двойных коллекторов может стать некой альтернативой – эффективность распределения жидкости у такой схемы достаточно высокая, однако имеют место некоторые сложности при монтаже; кроме того, в дальнейшем потребуется дополнительная регулировка.
Что нужно для подключения радиатора отопления. Как устроен радиатор отопления
Если упрощенно взглянуть на большинство радиаторов отопления, то их гидравлическая конструкция представляет собой достаточно несложную, понятную схему. Это два горизонтальных коллектора, которые соединены между собой вертикальными каналами-перемычками, по которым происходит перемещение теплоносителя. Вся эта система или выполнена из металла, обеспечивающего необходимую высокую теплоотдачу (яркий пример – мощность секции чугунного радиатора ), либо «одета» в специальный кожух, конструкция которого предполагает максимальную площадь контакта с воздухом (например, биметаллические радиаторы).

Очень упрощенно – схема устройства большинства радиаторов отопления
1 – Верхний коллектор;
2 – Нижний коллектор;
3 – Вертикальные каналы в секциях радиатора;
4 – Теплообменный корпус (кожух) радиатора.
Оба коллектора, верхний и нижний, с обеих сторон имеют выходы (соответственно, на схеме верхняя пара В1-В2, и нижняя В3-В4). Понятно, что при подключении радиатора к трубам контура отопления подключается лишь два выхода из четырех, а оставшиеся два глушатся. И вот от схемы подключения, то есть от взаимного расположения трубы подачи теплоносителя и выхода в «обратку» во многом зависит эффективность работы установленной батареи.
И прежде всего, планируя установку радиаторов, хозяин должен точно разобраться, какая же система отопления функционирует или будет создаваться в его доме или квартире. То есть он должен четко представлять, откуда поступает теплоноситель и в какую сторону направлен его поток.
Схемы подключения радиаторов отопления. Варианты схем
Сначала поговорим о том, какие схемы подключения радиаторов хороши для систем с принудительной циркуляцией. В них вода по трубам движется за счет работы циркуляционного насоса. Ниже представлены наиболее распространенные боковые схемы подключения радиаторов – рис. 1.
- Одностороннее подключение подразумевает размещение подающей трубы в верхней части корпуса, а отводящей – с этой же стороны внизу. В таком случае вода проходит через всю высоту радиатора, равномерно прогревая все его секции. Однако такая схема будет не очень эффективна для радиаторов большой длины – от 10 секций. Часть корпуса, находящаяся вдалеке от труб, будет хуже прогреваться.
- Нижнее подключение обычно используется для систем, в которых трубопровод уложен под пол, например, является ответвлением от водяной системы «теплый пол». И подающая, и отводящая трубы подключаются к нижним патрубкам радиатора. Это удобно, а при прокладке труб под полом в принципе является единственным решением. Однако у такой системы есть недостаток – значительные теплопотери, которые могут достигать 15%. Верхняя часть корпуса прогревается хуже нижней.
- Диагональное подключение заключается в верхнем расположении подающей трубы и нижнем расположении отводящей трубы с другой стороны радиатора. В таком случае теплоноситель равномерно заполняет радиатор, что способствует улучшенной теплоотдачи и сокращает потери тепла на 2%. Можно использовать диагональную схему с длинными радиаторами. Однако необходима установка заглушки и крана Маевского.
Соединение батареи с трубой. О способах подключения батарей
Начнем с того, что схема подключения бывает:
- односторонней;
- перекрестной;
- нижней.

Схемы подключения радиаторов отопления
По одностороннему варианту подключение производится, как правило, в городских квартирах, где используется центральное отопление. Здесь трубы подсоединяются лишь с одной стороны батареи. Преимущество схемы в том, что система может работать с максимальной номинальной мощностью, однако то, насколько эффективна теплоотдача, зависит от кол-ва секций батареи. Вода в данном случае не может доходить до удаленных от места подсоединения участков, что негативно влияет на эффективности всей отопительной системы. Данный эффект особенно заметен при использовании батареи, состоящей из 15-ти секций, потому при подключении многосекционных радиаторов предпочтение лучше отдавать другой схеме.

Адаптер для нижнего одностороннего подключения радиатора
В последние годы все большую популярность обретают биметаллические радиаторы, их можно подключать по диагональной (ее также называют перекрестной) схеме. Суть данной схемы в том, что подводка подсоединяется сверху, а отводка – снизу, но с другой стороны. При таком монтаже жидкость более равномерно распределяется по батарее, а значит, минимизируются потери ее мощности.

Диагональное подключение радиаторов отопления
На заметку! При использовании диагональной схемы необходимо учитывать то, как располагаются отводящая/подводящая трубы. Ведь если подвод сделать снизу, а отвод – сверху, то радиатор может потерять свыше 50% своей мощности.

Диагональная схема подключения радиаторов отопления при двухтрубной и однотрубной системе
Порой описанные выше схемы по тем или иными причинам не используются в помещении. Тогда остается только нижнее подключение , при котором образуется сквозной проход теплоносителя; очевидно, что до верхних секций радиатора жидкость в таком случае не доходит, из-за чего теплоотдача может снизиться на 15%. Тем не менее, данную схему нередко применяют в частных домах с индивидуальным отоплением. А теплоотдачу можно восполнить посредством распределительных трубок.

На что повесить чугунные батареи. Кронштейны для чугунных батарей
Чугун штука тяжелая, соответственно и крепления для чугунных радиаторов отопления должны иметь хороший запас прочности. Для монтажа батареи на кирпичную или шлакоблочную стену лучше всего подходят длинные крюки.
Варианты крепежа.
Под такой крюк перфоратором делается отверстие глубиной порядка 100 – 150 мм, после чего в это отверстие вставляется пластиковый дюбель и завинчивается сам крюк. Цена таких навесов самая доступная.
Сверлить железобетонную стену, даже хорошим перфоратором, довольно тяжело, а несущая способность бетона самая высокая, поэтому здесь достаточно заглубиться на 50 – 70 мм и закрепить на стене анкерным болтом специальный крюк, установленный на площадке, как на фото снизу.
Навесы для стен с высокой несущей способностью.
Крепление для чугунных радиаторов на стены из пено и газобетона также возможно, но крюки для этих целей берутся особые. Чаще всего используется спаренный стальной крюк на единой пластине.
Для монтажа чугунной батареи в 6 – 8 секций на стены из ячеистых бетонов идет 3 таких спаренных кронштейна, плюс сами кронштейны фиксируются минимум 3 специальными анкерами.
Совет: спаренные кронштейны бывают с фиксированным и регулируемым расстоянием между крюками и если вы еще точно не решили, какую именно модель чугунной батареи будете покупать, то берите регулируемые навесы их можно подогнать по месту.
Спаренный кронштейн с фиксированным расстоянием между крюками.
Кстати, для тех, кто еще не решил, сколько и каких батарей нужно именно в его случае, я рекомендую просмотреть статью по выбору и расчету радиаторов отопления под конкретные условия с фото и
Крепление радиаторов к сэндвич панелям невозможно, поэтому в каркасных домах, а также в случае, когда батарея вообще не граничит со стеной, для монтажа используются напольные стойки.
Внизу на фото показаны 3 самые распространенные разновидности подобных конструкций. Опять же если модель батареи неизвестна, то лучше брать конструкцию с хомутом в виде цепочки, она универсальна и подходит под любые радиаторы.
Напольные крепления для батарей радиаторов отопления.